洛慶不動産/目白駅から徒歩2分
info@rakkei-re.com
目白の不動産物件なら「洛慶不動産」。目白地域の物件と収益物件専門です。
一戸建て
マンション
土地
事業用
売買物件エリア一覧検索
売買物件沿線一覧検索
売買物件学校区一覧検索
登録されているカテゴリがありません
休日のお知らせ (29)
新しいお店のオープンです。 (1)
ディナーに行って来ました。 (1)
ランチに行ってきました。
お店の紹介です。 (7)
オススメ!リゾート物件!!
購入申込がありました。
目白の情報 (114)
売却物件を募集中です。 (8)
当社の案内 (2)
※最新情報をブログでチェックできます。
登録されているリンクがありません
株式会社 洛慶不動産本社
株式会社 洛慶不動産
豊島区目白3丁目13番2号
03-5988-0311
洛慶不動産は豊富な経験にもとづいた的確なアドバイスと親切・丁寧な対応でお客様の不動産取引をサポートします。
ニュース&トピックス
2026年
2025年
2024年
2023年
2022年
2021年
2020年
2019年
2018年
2017年
2016年
ニューストピックス
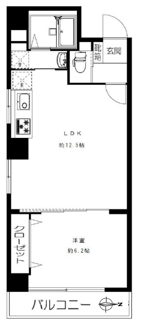
ウェルシャン第2池袋2階の東南角住戸に購入申込みがありました。
ウェルシャン第2池袋2階の東南角住戸に購入申込みがあったので物件から落としました。池袋駅・目白駅・雑司ヶ谷駅が利用できて便利、明治通り面で分かりやすい場所、リノベ済みであることが決め手となりました。昨年の10月末から販売活動を始めて約5か月、3回の価格変更を経て、やっと商談成立です。
更新日:2026/04/04